Anhänger Verkauf, Anhänger Vermietung, Anhänger Ersatzteile von Kuhnert Anhänger

Tips zum Eigenbau eines Anhängers!

Brennholz, Baumaterial oder Blumenkästen: Sie haben häufig etwas zu transportieren, das nicht in den Kofferraum passt oder das Sie nicht in den Kofferraum packen wollen. Ein Anhänger soll her. Und als versierter Hobbywerker setzen Sie auf Marke Eigenbau. Damit die Arbeit letztlich auch mit der Betriebserlaubnis belohnt wird, sind einige Regeln zu beachten.

 Die Bauteile und die Baugrenzen

Aus welchen Teilen besteht so ein Anhänger eigentlich genau?

  • Achse mit Bereifung
  • Zugrohr mit (Zugkugel-) Kupplung. (Wenn sie nicht Teil des Rahmens sind, dann ist eine Bauartgenehmigung erforderlich.)
  • Aufbau (mit Hersteller-Nachweis über Tragfähigkeit)
  • Teile für die Beleuchtung
  • bei gebremsten Anhängern zusätzlich Auflaufeinrichtung und Radbremse
  • Alle diese Bauteile – die lichttechnischen Einrichtungen ausgenommen – müssen für das vorgesehene zulässige Gesamtgewicht des Anhängers geeignet sein.
  • Außer Achse, Aufbau und Radbremse müssen alle Teile in amtlich genehmigter Bauart ausgeführt sein. Achten Sie auf entsprechende Prüfzeichen!
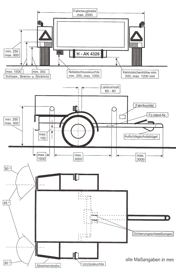
  • In der Kombination dürfen die Teile nicht die zulässigen Höchstmaße für einen Einachs-Anhänger überschreiten. Die Grenzen: zwölf Meter Länge, 2,55 Meter Breite und vier Meter Höhe.

Fahrgestell und Aufbau: So geht´s

  • Beim Bau des Fahrgestells verbinden Sie Achsen und Zugrohr mit einer passenden Klemmschale (die gibt es für alle Durchmesser-Kombinationen).
  • Die Einpresstiefe der Felge soll genügend seitlichen Abstand des Reifens zum Aufbau gewährleisten.
  • Sie bauen einen gebremsten Anhänger? Dann müssen Sie durch eine sogenannte Zuordnungsrechnung nachweisen, dass die Vorrichtungen fürs Auflaufen und die Übertragung sowie die Radebremse aufeinander abgestimmt sind. Und zwar beim gewählten zulässigen Gesamtgewicht und der vorhandenen Bereifung
  • Fahrgestell und Aufbau werden verbunden an den Auflageböcken der Achse sowie am Auflagebock des Zugrohrs.
  • Die größte Stützlänge (das heißt der Abstand von der Mitte des Kugelkopfs bis zur Mitte des Auflagebocks) ist abhängig von der Bauart und Ausführung des Zugrohres. Und zwar wiederum in Abhängigkeit vom jeweils zulässigen Gesamtgewicht.
  • Den Aufbau befestigen Sie mit dem Auflagebock am Zugrohr – am besten mit einer Klemmschale. Sie dürfen auch schweißen. Jedoch nur seitlich in der neutralen Biegezone des Zugrohres.
  • Der Aufbau ist so am Fahrgestell anzubringen, dass eine ausreichende Stützlast an der Kugelkupplung erreicht wird. Ausreichend ist üblicherweise ein Vormaß (Mitte Ladefläche vor Radmitte) von fünf bis acht Zentimetern.
  • Kombinieren Sie die Teile so, dass keine scharfen Kanten entstehen und dass scharfkantige Teile nicht überstehen.
  • Bordwände und Bordwand-Klappen sind so zu fertigen, dass Fugen so klein wie möglich gehalten werden.
  • Die Reifen müssen Sie durch Kotflügel abdecken. Letztere dürfen vorne und hinten höchstens 15 Zentimeter über der Radmitte liegen. Die gesamte Laufflächen-Breite des Reifens muss überdeckt werden.

Das gilt bei Licht und Kennzeichen

Damit Sie Ihren Anhänger sicher durch den Verkehr bringen können, ist auf die richtige Ausstattung mit Lichtern und Leuchten besonders zu achten:

  • Zwei dreieckige rote Rückstrahler (höchstens 90 Zentimeter über der Fahrbahn) und zwei rote Schlussleuchten (mindestens 35, aber höchstens 150 Zentimeter über der Fahrbahn) müssen sein. Sie dürfen jeweils nicht weiter als 40 Zentimeter vom Fahrzeugumriss entfernt sein.
  • Weiter vonnöten: Zwei Bremsleuchten für rotes Licht und zwei gelbe Fahrtrichtungs-Anzeiger (gibt es in Kombination).
  • Eine Nebelschlussleuchte ist Pflicht. Sie muss zehn Zentimeter vom Bremslicht entfernt sein, mindestens 25 Zentimeter und höchstens einen Meter über der Fahrbahn liegen.
  • Wenn Sie wollen, dann können Sie noch eine zweite Nebelschlussleuchte anbringen.
  • Ein amtliches Kennzeichen mit zugehöriger Beleuchtung ist vorgeschrieben. Die Unterkante liegt mindestens 30 Zentimeter über der Fahrbahn, die Oberkante höchstens 1,20 Meter.
  • Für die Längsseiten des Fahrzeugs brauchen sie gelbe Rückstrahler. Sie dürfen nicht höher als 90 Zentimeter liegen, von vorne maximal drei Meter und von hinten maximal einen Meter entfernt sein. Der Abstand unter den Strahlern darf höchstens drei Meter betragen. Einer der Strahler muss immer im mittleren Drittel der Fahrzeuglänge sitzen.

Die Extras für gebremste Anhänger

Ab 750 Kilogramm zulässigem Gesamtgewicht braucht der Anhänger eine eigene Bremse. Wenn Sie so einen bauen, dann gibt es einige Besonderheiten zu beachten:

  • Schweißen am Bremsgestänge ist nicht zulässig.
  • Einstellschrauben sind zu kontern.
  • Achten Sie darauf, dass Sie die Gegenhalterungen der Bowdenzüge ausreichend dimensionieren.
  • Sehen Sie für Bremsgestänge und Bowdenzüge Halterungen gegen das Durchhängen vor.
  • Die Auflaufvorrichtung müssen Sie unbedingt nach den Angaben des Herstellers einstellen (Wegreserve, gleichmäßige Bremswirkung).
  • Vergessen Sie nicht das Abreißbremsseil.

Die Zusatz-Ausrüstung

Fix und fertig mit der Arbeit am neuen Anhänger? Noch nicht ganz.
Ein paar Zusatzteile sind noch erforderlich:

  • Bringen Sie auf oder in der Nähe des Zugrohres ein Stützlast-Schild an. Die Mindest-Stützlast beträgt vier Prozent des Anhängergewichts, muss aber nicht höher als 25 Kilogramm sein.
  • Für Anhänger mit mehr als 750 Kilogramm zulässigem Gesamtgewicht sind zwei Unterleg-Keile erforderlich. Bringen Sie die in festen Halterungen am Gefährt an.
  • Zuletzt brauchen Sie noch ein Fabrikschild. Es wird über oder neben der Fahrgestellnummer angebracht.
  • Das Fabrikschild muss folgende Angaben enthalten: Namen des Herstellers; Typ; Fahrgestellnummer (wird von der Prüfstelle gegen Gebühr zugeteilt); Achslast hinten; zulässiges Gesamtgewicht.
Maße für anhänger selbstbau

Papiere und Gutachten

Jetzt braucht Ihr Anhänger Marke Eigenbau noch eine offizielle Identität. In der Regel geht es erst zur Zulassungsstelle, wo Sie sich einen leeren Fahrzeugbrief besorgen. Dann weiter zum TÜV Service Center, wo Sie den Anhänger begutachten lassen.

Am besten, Sie klären das konkrete Vorgehen und den Termin vorab noch mit den Experten des TÜV ab.